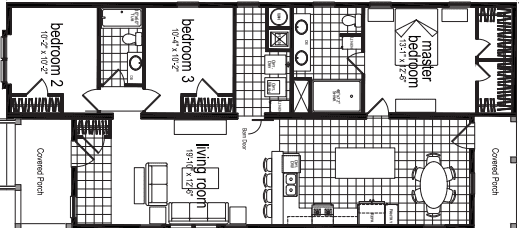
Homes | GS Grand Mesa