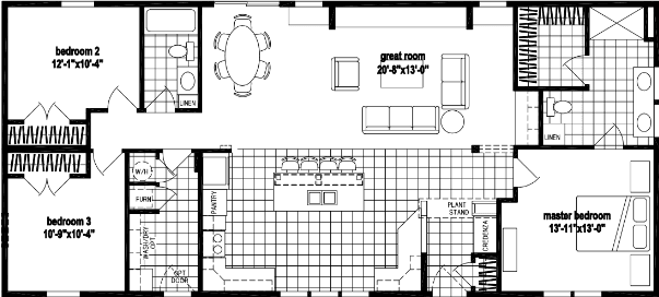
Homes | GS Sierra